フリーローラコンベヤ
HDR4212
- 軽中荷重
- φ42.7X1.4Xφ12メッキ付
- 300~1000
- パイプφ12
製品詳細情報
- 型式
- HDR4212
- ドライブ
- パイプφ12
- タイプ
- パイプφ12
- 荷重
- 軽中荷重
- 駆動方式
- 平ベルト駆動
- 外径×肉厚×軸径
- φ42.7X1.4Xφ12メッキ付
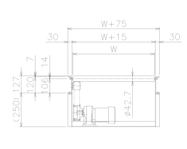
- ローラ幅(W)
- 300~1000
- シャフト
- パイプφ12
- スプロケット仕様
- 寸法
- [120×30×3.2
- ピッチ(P)
- 50・75・100
- 最大機長(L)
- 9000
- 機幅(W)
- 最低機高
- 搬送能力
- ローラ(W)+75
- 搬送速度
- 400
- モーター出力
- 0.1・0.2・0.4
- 電源
製品の紹介
- コンベヤ各部寸法



